PDF DOWNLOADS

Architects Corner

*These are our standard configurations. Additional configurations available for tight or abnormal spaces.

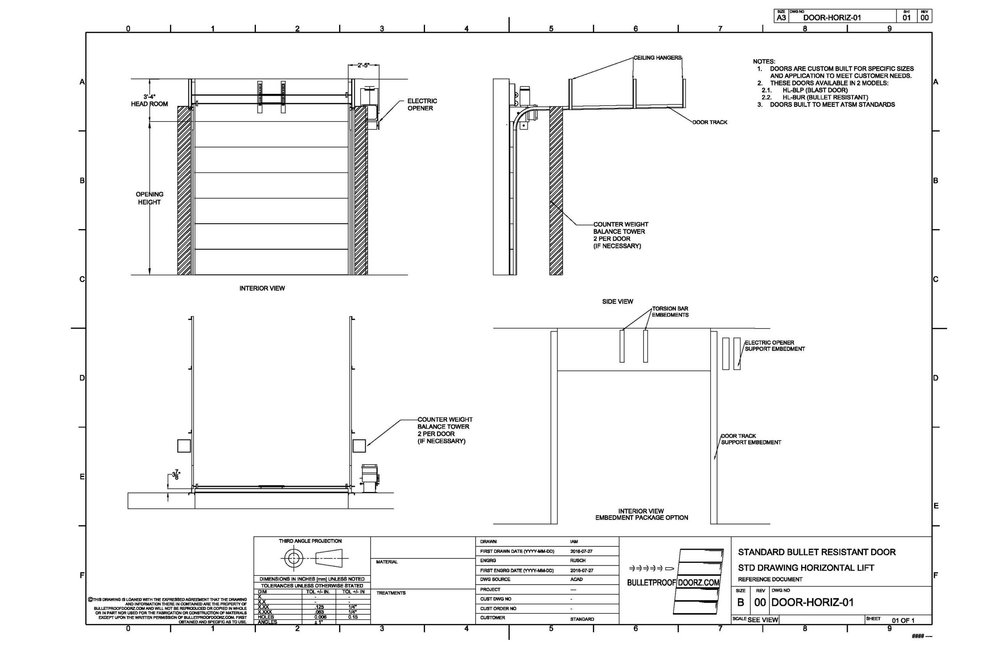
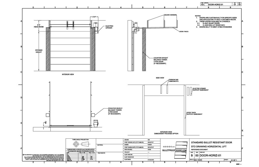
Download detailed spec sheets for each door type below to assist with your project planning and documentation.

Steps

Our Process from Start to Finish

  • 01

     3D drawings provided for client approval

  • 02

    Fabrication Fabrication of product 

  • 03

     Shipping

  • 04

    Installation 

  • 05

     Multi-year warranty available 

  • 06

    Annual and preventative maintenance inspections, performed by our certified technicians, available  

Contact Us

What Type OF Protection
Are You Looking For?

Inquire Within
Bullet Proof Doorz